News Flash Home
The original item was published from 9/22/2022 9:47:05 AM to 10/6/2022 5:05:02 PM.

News Flash

Village Miscellaneous

Posted on: September 29, 2022

[ARCHIVED] New Senior Housing Concept Gets Proposed in Romeoville

Senior Housing

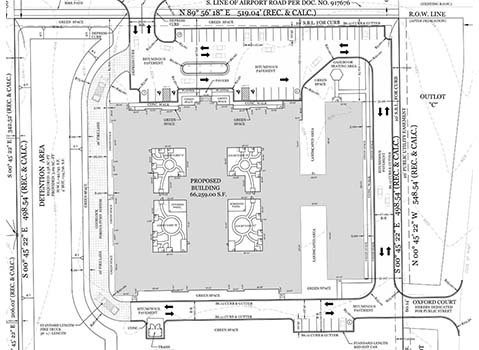
The southwest corner of Airport Road and Budler Road could soon be home to a new senior housing development. The Village Board reviewed the initial concept plan at their meeting. The proposal calls for a single-story, 66,259 square foot building with sections for both regular assisted living and memory care, which would be in a separate wing. The facility would have approximately 81 units, with 26 being for memory care. 

Some of the proposed amenities include public and private dining rooms, a library, a salon and spa, a theater, and several outdoor courtyards and patios 

“We look forward to this project as another housing option for the region’s aging population,” said Mayor John Noak.

With this project will come the completion of the bike path along Airport Road. A large landscape buffer is being proposed along the south property line adjacent to the Fieldstone Townhomes.


Facebook Twitter Email

Other News in Village Miscellaneous

Meet Up Spot

Safe Exchange Zone

Posted on: January 9, 2026
Wrmng Shltr

Winter Weather Information

Posted on: November 9, 2025
Registries

Online Registries to Consider

Posted on: January 31, 2025
Rx Return

Prescription Drug Collection Program

Posted on: April 19, 2024